继续操作前请注册或者登录。

道舍村网科技:全套新中式民宿建筑CAD施工图+SU模型+效果图,评论区评论“图纸”两字,免费送10套农村自建房施工图


这是教......效果图。







△效果图
这是我们su模型做的一个动画。
△新中式民宿建筑SU模型动画
道舍村网科技案例展示(小部分)



Δ中国湖北汉川夏府别墅项目













Δ中国湖北武汉东西湖四合院项目

Δ加拿大温尼伯mercharts项目

Δ加拿大温尼伯prichard项目


Δ中国浙江桐乡市生态公厕建设项目



Δ中国湖北荆州市鑫利嘉境别墅项目
(篇幅有限,不一一展示了)
农村盖房
上道舍村网
设计施工一站式盖房服务
让您省时、省心、省力、省钱
自建房
别墅
民宿
庄园
设计施工

下单咨询
18171898565
微信扫一扫即可添加汤亮微信
(请您备注来自公众号+来意+城市,谢谢配合)

下单咨询
18171898565
微信扫一扫即可添加汤亮企业微信
(请您备注来自公众号+来意+城市,谢谢配合)

下单咨询
18086036676
(微信同步)
       
       今天的图文呢一定要转发,让更多人看到。耐心看到最后有彩蛋,不要错过,在工作、在加班、在陪老婆孩子的,不妨先收藏起来,不忙了再耐心看看。今天给大家分享一套新中式民宿建筑图纸,建筑层数三层。建筑施工图都有哈,
      这是总图。

△总图
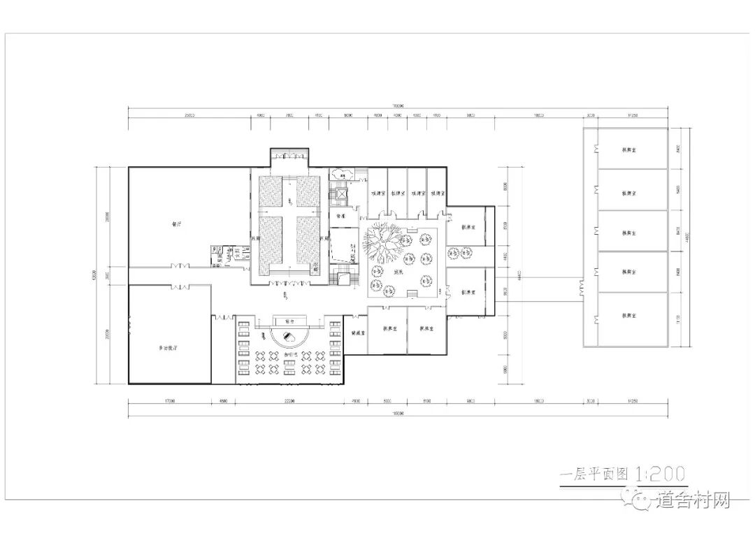
      我们来看看建筑施工图功能布局,先看首层功能布局,有餐厅、多功能厅、男厕、女厕、咖啡吧、前台、绿化、回廊、管理间、庭院、棋牌室。

△首层平面图
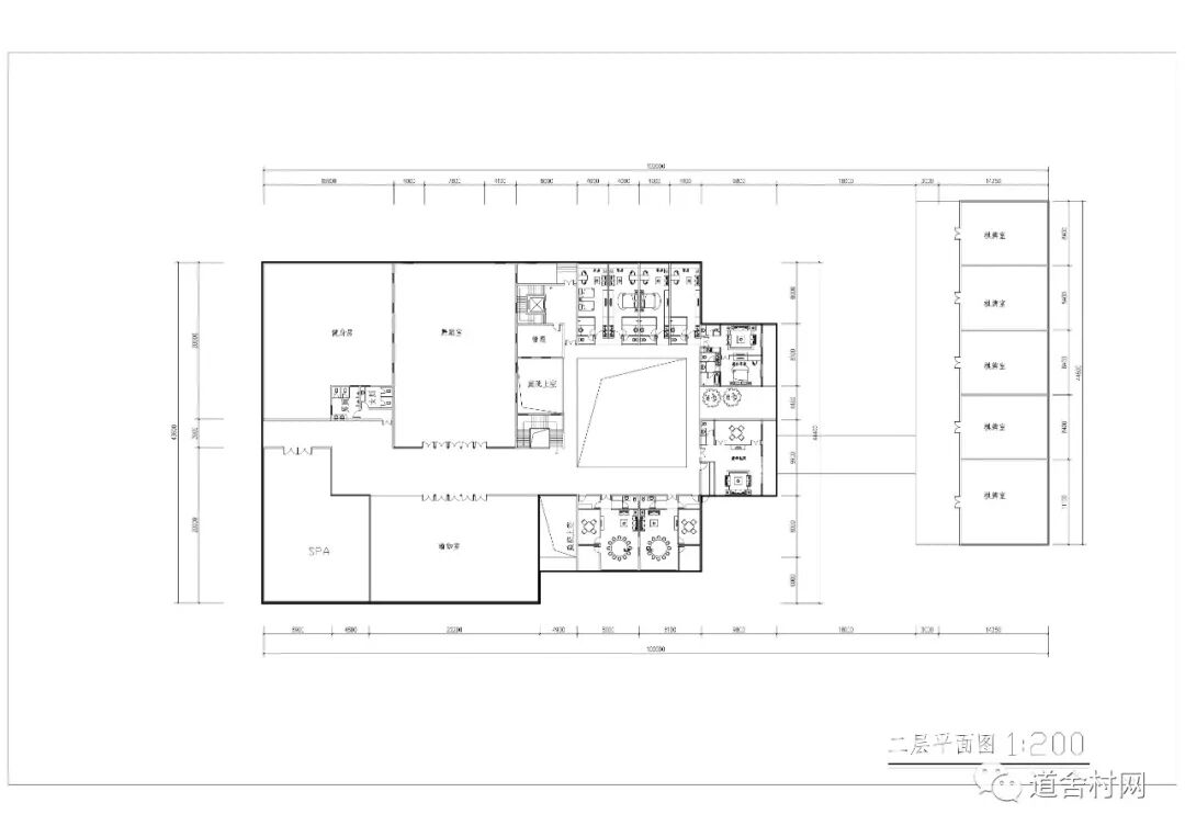
我们再来看看二层功能布局。有SPA、瑜伽室、健身房、舞蹈室、男厕、女厕、管理间、包间、客房、豪华包间、豪华客房、棋牌室。

△二层平面图
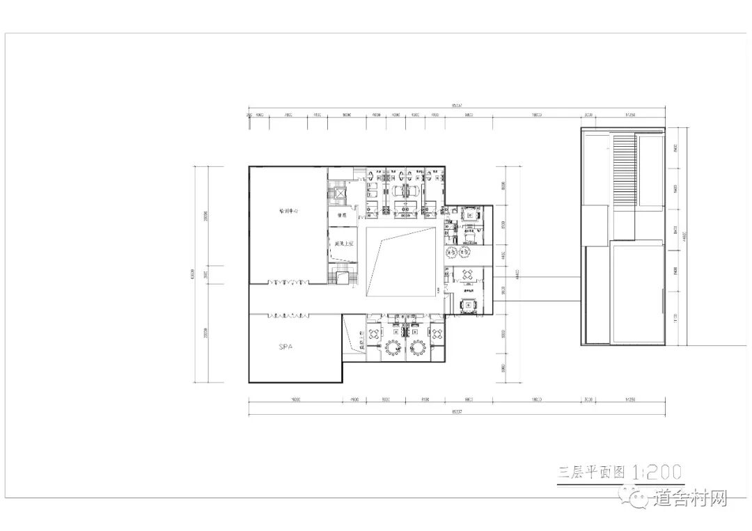
再来看看三层平面图,功能布局设有:SPA、培训中心、管理间、客房、包间、豪华客房、豪华包间。

△三层平面图
        结构形式是框架结构。这是屋顶层平面图,

△屋顶层平面图
       这是立面图,

△南立面

△北立面

△东立面

△西立面
     这是剖面图,

△剖面图  
  
       我们的施工图免费送,请在评论区评论图纸两字,
如果你想盖一栋自己的房子
告诉【道舍村网】您的需求
我们将为您提供一站式服务
设计、施工

扫微信公众号,设计有优惠!
商务合作
诚邀
全球范围有实力的
设计师/施工队/建材厂家/家居厂家
与我们合作
合作咨询电话
027-87509668
18171898565

道舍村网创始人微信二维码
合作交流请扫码
(请您备注来自公众号+来意+城市,谢谢配合)

【招募】城市合伙人。一定要做农村!
【入驻】道舍村网诚邀全球优质施工队入驻
【现场勘测】您知道您为何钱花了房子起不好吗?
全套图纸点击这里免费领取
附上汤亮帅帅的照片,请欣赏

↓↓↓点击【阅读原文】进入道舍村网官网

道  舍  村  网
阅读原文
到顶部