有种单挑啊!中信PK鲁能,两大央企海南血拼



早在去年,楼Sir在儋州调研时就不断的被中介洗脑,说未来洋浦是个可以比肩海口、三亚的海南“第三极”,殊不知还有一个地方紧随其后,那就是澄迈。
澄迈,在楼Sir眼里是一个低调而神秘的地方,也许在省会城市海口的光环下,它的光芒被掩盖了不少,略显默默无闻。
最近,2021年海南省各市县GDP成绩单出炉了,楼Sir在整理时发现,澄迈竟然在众多“竞争对手”中排名第四,看来是位“闷声干大事”的主。

| 2021年海南各市县地区生产总值
碰巧,之前也有不少网友留言希望楼Sir可以去踩一下澄迈的老城,看看那边的房子是否值得出手?

本着走遍全海南的初衷,2022年楼Sir启程再出发,首站就定在了澄迈老城。由于这个区域项目众多,楼Sir先带大家看看位于盈滨半岛的两个央企楼盘。
新的一年,楼Sir将以海南最受关注的几个市县为起点,开启全岛跑盘模式,如果你还想看哪些区域或楼盘,提前跟我们约档期!
另外,楼Sir交流群里还有空位,无论你是想买房、爱聊房,还是需要爆料,都可以扫码进群与广大购房者交流心得。

为什么是老城?
2021年,澄迈县地区生产总值高达400.8亿,仅次于海口、三亚、洋浦,这个成绩在全省绝对算得上是名列前茅,而这个数据当中,老城经济开发区贡献功不可没。可以说,老城开发区支撑了整个澄迈经济的大半壁江山。

| 海南自由贸易港生态软件园沃克公园 来源:官网
这里还集结了海南生态软件园、海口综合保税区、马村深水港、盈滨半岛及优质教育等资源,因此备受想要在海口买房但实力有限人群的青睐。
作为老城一个重要的区域,盈滨半岛被定位为滨海旅游度假区,享内外双海湾,拥有优质的自然环境资源,加之与海口西海岸形成无缝衔接之势,其优势是其他地区无法比拟的。
或许正是这个原因,不少开发商早在多年前就开始在此拿地开发,其中不乏一些品牌房企。

但是盈滨半岛品牌房企屈指可数,知名度最高的当属鲁能,旗下的海蓝福源占地近5000亩,也是该区域体量最大的项目。
其次就是远洋地产了,先后在盈滨半岛开发了远洋华墅及远洋观海,两个项目均已售罄。
殊不知还有一个央企背景项目——国安·海岸。

国安·海岸是何许人也?
国安·海岸开发商是海南高发置业投资有限公司,投资商为国安(海南)体育文化发展有限公司,均为中信国安旗下子公司。

| 企查查截图
2014年,由于房地产业务发展需要,中信国安以3亿的价格收购了海南高发置业100%的股权(其中股权收购6,133.6 万,偿还借款24,520.4万),进行海南旅游地产开发。
2016年,中信国安旗下的海南盈滨半岛项目正式开工,并将旅游地产与体育文化产业相结合,被列入了当地政府“十三五”重点工程。 
2018年6月,收购了澄迈安盈置业有限责任公司100%股权,获取80亩一线海景土地开发使用权,收购价格为3.8亿。
2019年,国安·海岸结构封顶并开始销售,项目占地252亩,规划建面约18万平方米,其中别墅304套,公寓1366套。

| 中信国安2020年年报
另据中信国安2021年度业绩预告显示,受政策、疫情等因素叠加影响,国安·海岸进展低于预期,项目总体出现减值迹象,根据评估机构初步评估结果,在建房产及土地的可收回金额低于账面价值,预计需计提减值准备5.03亿元。
说白了,中信国安在这个项目上亏损了5个亿。

国安·海岸卖的啥?
楼Sir印象中,国安·海岸出镜率不高,也没做过什么宣传,只是偶尔会在一些房产中介朋友圈看到过,却没想到还有央企背景,也让楼Sir来了精神!
从海口国贸出发前往项目,不堵车大概需要45分钟,走的是滨海大道-永庆大道沿线,看着挺远,但西海岸过去也就是十多公里。

| 分别从海口国贸及海口站出发路程图
进入盈滨半岛,首先映入眼帘的还是鲁能海蓝福源,沿途也看到了国安·海岸的指示牌。

项目大门挺大气,有点品牌开发商的味儿了。

正值春节期间,楼Sir走进营销中心,也看到有几组客户正在与售楼员沟通看房,虽然不算火爆,但至少有些人气。

| 项目沙盘
项目在售的有高层瞰海公寓和别墅,其中高层为65㎡的两房两厅,基本售罄,仅剩下几套65㎡的两房两厅的房源,看海的大概120万左右一套,不看海的100多万。

| 65㎡户型图
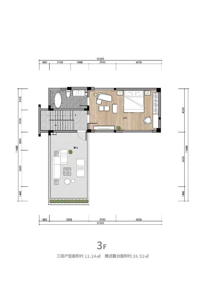
既然没什么房了,楼Sir果断选择看别墅,也是项目主推的产品,共304套,全部精装修出售,地上三层设计,私家车可直接停在门口。
别墅(推广名为星空小院)有三个户型,分别为101㎡的双拼、116㎡和152㎡的独栋。
其中双拼别墅的赠送加拓展实际可用到190㎡,可以做到3-4房,算下来一套大概370多万,不到两万一平的别墅,是不是诱惑相当大,别急,房本上的面积还是会被打回原形,但实际使用面积确实不小。

A1户型:101.02㎡双拼别墅F1

A1户型:101.02㎡双拼别墅F2

A1户型:101.02㎡双拼别墅F3
左右滑动查看更多
这个户型有一点好处就是,每层都会有一个大的露台供购房者享用,采光也足。

| 样板间实景 楼Sir拍摄
剩下两个户型就是独栋别墅了,建面116㎡的户型实用面积可达230㎡,总价500万左右。

A2户型:116.13㎡独栋别墅F1

A2户型:116.13㎡独栋别墅F2

A2户型:116.13㎡独栋别墅F3
左右滑动查看更多
小一点的独栋别墅,入户庭院面积宽敞,客厅6米多的挑高,2楼有儿童房和娱乐区,3楼主卧和露台面积超大,还有私家温泉泡池,相比101㎡的户型,性价比还是稍逊一筹。

| 样板间实景 楼Sir拍摄

| 别墅区实景 楼Sir拍摄
还有建面152㎡、实用面积300㎡的独栋,总价在600-800万不等,户型及实景图如下。

B户型:152.48㎡独栋别墅F1

B户型:152.48㎡独栋别墅F2

B户型:152.48㎡独栋别墅F3
左右滑动查看更多
小区绿化、园林、泳池、温泉泡池都已打造完毕,别墅都是一房一价,由于朝向、位置不同,价格也会有所差别,年底交房。

| 小区实景 楼Sir拍摄
不愧是有钱人的标配,也让楼Sir过了一把眼瘾。
但项目有个大大的硬伤,国安·海岸项目土地性质为商住用地,年限只有40年,房屋性质均为产权式酒店,由于是收购项目,加上之前的时间,目前也仅剩30年左右了。
更重要的是,在海南,产权式酒店也在限购范围内,没有海南户口不能买,即使投资的话,契税比住宅要高出不少。

鲁能卖的啥?
楼Sir标题说了,两大央企楼盘PK,另外一个就是鲁能了。

作为盈滨海岸出镜率最高的项目,也会经常被群友提起,从国安·海岸出来之后,楼Sir直奔鲁能海蓝福源售楼处。

| 鲁能海蓝福源售楼处 楼Sir拍摄
据介绍,鲁能海蓝福源在售的主要是东二区西区的高层住宅以及西一区的商业别墅,东二区西区小区总占地542亩,共有17栋高层以及391套别墅组成,别墅均已售罄。

| 小区鸟瞰效果图
目前主推的2#楼,楼栋位于小区东南侧,层高30层,分两个单元,每个单元两梯四户,边户为南北通透,物业费2.4元/㎡·月。

| 小区环境实景图
在售户型的面积段分别有74㎡、77㎡、95㎡均为一室两厅、130㎡两室两厅,看户型是不是有点浪费?不过每个户型都可以拓展增加实用面积,另外主推的2#楼没有130㎡的户型。




左右滑动查看更多
价格方面,小户型单价在1.38万-1.6万不等,70多平的价格区间在103万-115万,95㎡的户型售价在140万-160万之间,层高或能否看海是产生价差的主要原因。

74㎡客餐厅

74㎡主卧

74㎡书房(拓展)
左右滑动查看更多
| 75㎡样板间实景

95㎡客厅

95㎡客餐厅

95㎡主卧
左右滑动查看更多
| 95㎡样板间实景
由于鲁能海蓝福源东二区西区高层住宅体量大,房源也多,因此其他楼栋也有部分房源在售,只是可选性小。
除东二区西区的高层,西一区的独栋商墅也是在售状态,建面100多,实用面积160平,价格区间为350-480万,由于临海,所以性质也是商住用地,40年的土地年限也就剩下20多年了。

至于实际房子如何,楼Sir也去看了,门口斑驳还有裂缝的户型展示图已经告诉楼Sir这房子经历了不少岁月的侵蚀。

| 别墅实景图

楼Sir感受
看完两个项目,肯定又有人要问了,到底能不能买啊?

先说说这里的生活气息吧,楼Sir在贯穿整个盈滨半岛的主干道“永庆大道”上,看到的行人屈指可数,可能由于疫情原因,基本没什么人气,只有靠近海边的地方能看到一些游客。

| 永庆大道 楼Sir实拍
试想一下,如果到了晚上,可能整个片区都看不到几处亮灯,以下就是楼Sir群友对盈滨半岛的印象。


目前岛上的配套也少的可怜,就只有一个“叶波大润发”(此大润发非彼大润发)可以勉强满足周边小区居民的日常生活。

| 叶波大润发就在鲁能东区二区北门门口
如果想要购买更多的必需品,就只能前往盈滨路,由于该路两侧有不少老小区,早已形成了比较热闹的生活氛围,国安·海岸出发至此有将近4公里的路程,鲁能东二区稍微近些。

| 盈滨路一景
这里不仅有综合市场,还汇集了不少天南地北口味的餐馆,楼Sir午餐就是在这里用一碗胡辣汤解决的,味道还真的“中”。

相比之下,岛上除了永庆寺和温德姆酒店,基本没什么配套了,优势就是自然环境,无论海水还是沙滩,都可以秒杀海口大部门海滩了。
医疗有个海南颐仁医院,说是三甲,但开业时间未定;教育方面,华东师范大学澄迈实验中学已开学,这里注意一下,澄迈不像海口,没有学区划分一说,选择中意的学校直接报名即可。
综上,如果你买房用来自住,可以选鲁能,但要是投资的话,基本没什么人接盘了,毕竟周边楼盘太多,楼Sir在盈滨路上就看到一大堆中介在路边推荐房子。

| 路边中介比比皆是
如果你不差钱,在海口西海岸或老城工作,还不在乎土地性质,就是想来套别墅住一下,顺带享受一下滨海旅游度假区的风光,国安·海岸还真可以看看。

| 国安·海岸销控板
具体买哪儿,还是要看你的需求和实力。
什么?还没看够,没关系,楼Sir在这里预告一下,下一篇楼Sir就讲一讲老城其他区域的几个热盘,替你实地看房,帮你把关!
如果你还有什么信息,欢迎随时勾搭楼Sir,或扫码进群,加入网聊大军。
楼Sir微信,Lousir2021
楼Sir踩盘:
海口:
江东新区 | 仁恒滨江园 千江悦 蓝宝·凤鸣蘭曦 开维生态城  江东观林海
秀 英 区 | 罗牛山玖悦台 雅居乐金沙湾 南海幸福汇 宝龙城 首开·美墅湾 华侨城曦海岸 西海瑞园 展兴汇景名城 保利中央海岸 北辰府 大华·锦绣海岸 星华海岸城 晨晖·西海岸广场 凤凰悦海 紫竹园 永和花园
龙 华 区 | 海口湾玉府 星华海德豪庭 滨海丽景二期 衍宏府 金岛国际  京华城 观澜湖观园 观澜湖观悦 观澜湖上东区 观澜湖九里 观澜湖星光里
美 兰 区 | 碧桂园中央半岛 恒大美丽沙 海航国兴城 国沣城 盛达景都 中交夏瑶雅苑 绿地江东首府
琼 山 区 | 融创金成海口壹号 世茂璀璨时代 保利六千树 富力首府 海南新天地 乾坤吉祥花园 海口·十里春风 佳元·江畔锦御 国瑞云龙湖
商      办| 市场分析 龙湖光年 华润润山府
商      业| 友谊南海城 万国大都会
三亚 | 恒大美丽之冠 三亚凤凰岛 海棠湾 半山半岛 
陵水 | 雅居乐清水湾 葛洲坝海棠福湾 
澄迈 | 鲁能·海蓝福源
热盘 | 恒大海花岛 洋浦保利中心 
购房政策:全域限购政策 | 安居房 | 人才购房 | 贷款/落户热点问答




到顶部